... na rad prišli konkrétne veci... ako bude dom vyzerať, z čoho bude postavený, aké technológie budú použité, aké materiály, kto ho vlastne postaví a samozrejme za čo... no a takéto sú závery:
- bývanie v jednej úrovni s oddelenou dennou a nočnou časťou
- spoločná denná časť- kuchyňa spolu s obývačkou
- čo najväčšie prepojenie s exteriérom
- montovaná drevostavba s plochou štrkovou strechou
- dom založený na pätkách
- kúrenie elektrické- infrafólie v strope a podlahách... žiaden plyn!
- riadené vetranie s rekuperáciou tepla
Vzhľadom na finančné možnosti (a aj preto, že ma to baví) bude dom realizovaný svojpomocne... Viackrát som použil výraz brutálna svojpomoc, pretože robíme naozaj všetko sami ( výkopy, betonovanie, tesárina...žiadny stroj, či partia robotníkov...).
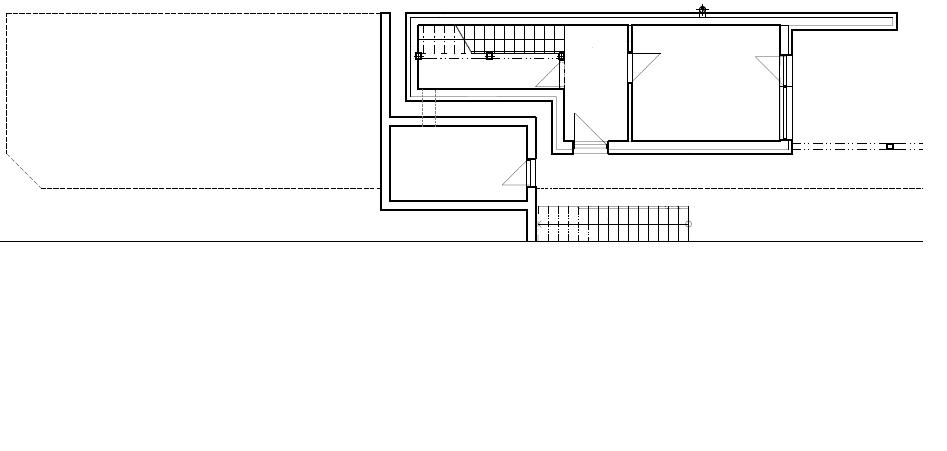
hlavné obytné podlažie

spodné podlažie s tech. miestnosťou a pracovňou

Ničmenej môj optimistický pohľad na cenu domu do 50 000,-€ sa nám naplniť určite nepodarí...